Wohnungen
Modernes Wohnen mit Komfort
Helle Räume mit Fußbodenheizung, modern ausgestattete Bäder, hochwertige Boden- und Wandbeläge und viele weitere Annehmlichkeiten sorgen für eine besondere Attraktivität der Wohnungen. Große Balkone oder Dachterrassen und Abstellräume auf den Etagen ergänzen die modernen und offenen Grundrisse. Alle Wohnungen sind barrierefrei.
Freie Wohnungen
Gebäude 3
Weidenstraße 5
Im dritten Bauabschnitt entsteht ein Gebäudekomplex mit 12 Wohnungen und einer Arztpraxis im Erdgeschoss. Ein schön gestalteter Park mit seinen zahlreichen Sitzgelegenheiten und einem Spielplatz bildet das Herzstück des kleinen, in sich geschlossenen Wohnensembles. Zu jeder Wohnung kann ein PKW-Stellplatz angemietet werden. Darüber hinaus gibt es Ladesäulen für E-Autos und abschließbare Boxen für Fahrräder, Kinderwagen und Rollatoren auf dem Grundstück.
Bezug ab Mitte 2026
Jetzt Anfragen
Sie interessieren sich für eine Wohnung im Neubauprojekt WeidenCarré?
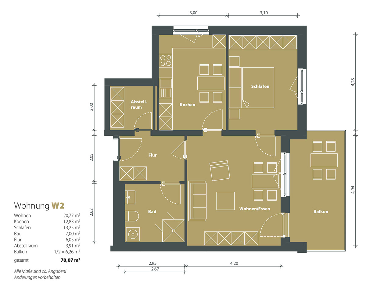
Grundriss

Grundriss

Grundriss

Grundriss

Grundriss

Grundriss

Grundriss

Grundriss

Grundriss

Grundriss

Grundriss

Grundriss

Gebäude 2
Weidenstraße 3
Im zweiten Bauabschnitt wurde ebenfalls ein Gebäude errichtet, in dem generationsübergreifendes Wohnen vereint wird. In den drei obersten Etagen befinden sich 15 moderne Wohnungen. Der Zugang erfolgt über einen separaten Eingang. Der schön gestaltete Park mit seinen zahlreichen Sitzgelegenheiten und einem Spielplatz bildet das Herzstück des kleinen, in sich geschlossenen Wohnensembles. Zu jeder Wohnung kann ein PKW-Stellplatz angemietet werden. Darüber hinaus gibt es Ladesäulen für E-Autos und abschließbare Boxen für Fahrräder, Kinderwagen und Rollatoren auf dem Grundstück.
Jetzt Anfragen
Sie interessieren sich für eine Wohnung im Neubauprojekt WeidenCarré?
Grundriss

Grundriss

Grundriss

Grundriss

Grundriss

Grundriss

Grundriss

Grundriss

Grundriss

Grundriss

Grundriss

Grundriss

Grundriss

Grundriss

Grundriss

Gebäude 1
Weidenstraße 1
Im ersten Bauabschnitt wurde ein Gebäude errichtet, welches generationsübergreifendes Wohnen vereint. In den oberen drei Etagen befinden sich 15 moderne Wohnungen. Der Zugang erfolgt über einen separaten Eingang. Der schön gestaltete Park mit zahlreichen Sitzgelegenheiten und Spielplatz bildet das Herzstück des kleinen, in sich geschlossenen Wohnensembles. Zu jeder Wohnung kann ein PKW-Stellplatz angemietet werden. Darüber hinaus gibt es Ladesäulen für E-Autos und abschließbare Boxen für Fahrräder, Kinderwagen und Rollatoren auf dem Grundstück.
Jetzt Anfragen
Sie interessieren sich für eine Wohnung im Neubauprojekt WeidenCarré?
Grundriss

Grundriss

Grundriss

Grundriss

Grundriss

Grundriss

Grundriss

Grundriss

Grundriss

Grundriss

Grundriss

Grundriss

Grundriss

Grundriss

Grundriss
